Karakteristiek en monumentaal pand, gelegen aan het populaire Wilhelminaplein, in de binnenring van Eindhoven.
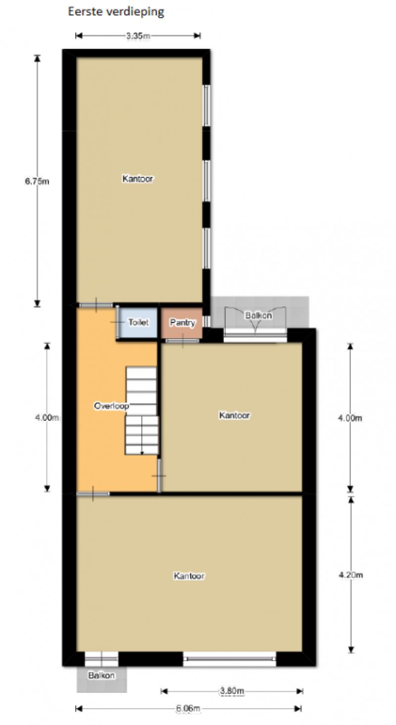
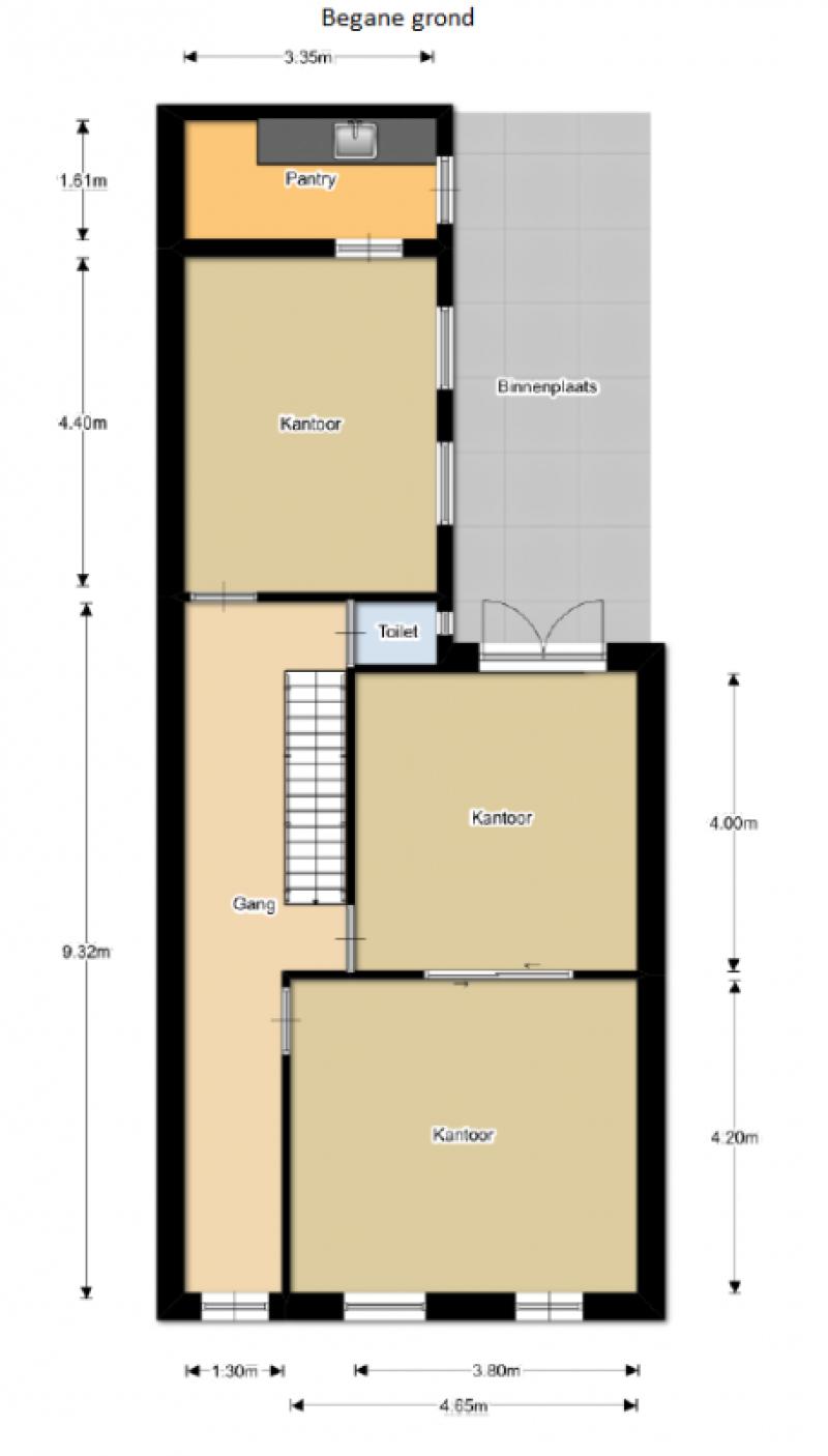
De directe omgeving kenmerkt zich voornamelijk door een mix van winkels, horeca, luxe kantoorpanden en woonbebouwing. De kantoorruimte is verdeeld over drie bouwlagen en beschikt over een binnenplaats.
Dankzij de ligging aan de rand van het centrum is de bereikbaarheid met auto en openbaar vervoer goed te noemen. Het Wilhelminaplein wordt met de auto ontsloten via de Willemstraat en de Vorderweg. Via deze wegen zijn de binnenring en het snelwegennet rond Eindhoven binnen enkele autominuten te bereiken.
circa 210 m2
keuken / sanitair / cv-installatie / aansluitingen g/w/e / glas-in-lood / ensuite deuren/ plafondornamenten / airco / patio / bekabeling
Kantoor met mogelijkheid tot wonen op de 2e etage
Parkeren met de auto kan op het Wilhelminaplein, aan de Willemstraat of in de parkeergarages De Admirant en Hooghuis (allen betaald parkeren). Tevens kan er op eigen initiatief een of meerdere parkeervergunning(en) aangevraagd worden bij de gemeente Eindhoven. Met het openbaar vervoer is het Wilhelminaplein te bereiken via de bushalte Wilhelminaplein en bushalte Vrijstraat.
per 01-05-2026
Van Eeuwijk Vastgoed
Dommelstraat
5611 CJ Eindhoven
Tel. 040-2961111
E-mail info@vaneeuwijkvastgoed.nl
> Kantoorruimte
> Winkelruimte
> Bedrijfsruimte
> Woonruimte
> Horeca





